大口徑干式光電直讀水表
發布時間:2016/11/24 點擊量:
一、產品概述:光電直讀水表采用的是光電管發光與接收光的,使用了光、機、電一體化技術及絕對式光電編碼器原理,通過透射式光電轉換,將每個字輪作為一個碼盤,五個紅外接收管感應字采用輪上的透光槽射過來的紅外光而引起的電平變化組成一組五位數碼,經譯碼后遠傳至系統計算機在抄表界面上顯示與水表窗口值相同的數字瞬間抄表讀取計數器字輪位置狀態,從而準確地讀出字輪在顯示窗的數字。 光電直讀是對字輪采用編碼的方式,就是二進制原理0-1編碼方式。每一個代碼對應一個字輪可以讀到的數字。獲得的代碼速度快,解碼速度更快。因為是二進制的編碼,而且解析代碼不會有差錯,平常無須供電只在抄表或動作閥門時。
二、產品的特點: 1、濕式干式可選
2、遠傳最小位為0.1 M³
3、大口徑有垂直螺翼、有磁傳可拆水平螺翼兩種
4、多重防竊水設計、IP68防水防浸泡設計、防拆、防倒流設計
5、小口徑有水平立式可選,
6、閥控非閥控可選
7、無線光電直讀更適合特殊安裝環境,減少工程施工成本。
8、GPRS光電直讀水表
三、主要技術參數:
四、大口徑光電直讀水表參數:


五、可參考說明書內容。
二、產品的特點: 1、濕式干式可選
2、遠傳最小位為0.1 M³
3、大口徑有垂直螺翼、有磁傳可拆水平螺翼兩種
4、多重防竊水設計、IP68防水防浸泡設計、防拆、防倒流設計
5、小口徑有水平立式可選,
6、閥控非閥控可選
7、無線光電直讀更適合特殊安裝環境,減少工程施工成本。
8、GPRS光電直讀水表
三、主要技術參數:
| 輸出 | Mbus | 485 | TTL |
| 工作電壓 | 24V-42V | DC12V±2V | 3.3V~5V |
| 工作電流 | 0.8±0.1ma | 0.8±0.1ma | <0.3ma |
| 支持協議 | DL/645-1997、DL/645-2007、CJ/T188、Modbus、客戶指定 | ||
| 波特率 | 1200bps、2400bps、4800bps、9600bps | ||
| 校驗方式 | 偶校驗或無校驗 | ||
| 數據位 | 8位或10位 | ||
| 遠傳最小位數 | 0.1 M³或1 M³ | ||
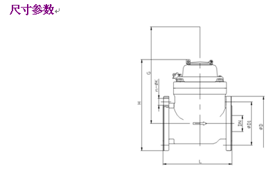
四、大口徑光電直讀水表參數:


| 水表 | 公稱口徑DN | 長度Lmm | 高度Hmm | 重量Kg | 連接法蘭按 GB/T 17241.6-1998 | ||
|
法蘭外徑 D(mm) |
螺栓孔中心圓直徑D1(mm) |
單邊螺栓數 與孔直徑 |
|||||
| LXLC | 40 | 200 | 206 | 9.8 | 150 | 110 | 4-M16 |
| 50 | 200 | 210 | 10.6 | 165 | 125 | 4-M16 | |
| 65 | 200 | 218 | 11.6 | 185 | 145 | 4-M16 | |
| 80 | 225/200 | 280 | 16.3 | 200 | 160 | 8-M16 | |
| 100 | 250 | 290 | 17.8 | 220 | 180 | 8-M16 | |
| 125 | 250 | 310 | 21.6 | 250 | 210 | 8-M16 | |
| 150 | 300 | 320 | 31.5 | 285 | 240 | 8-M20 | |
| 200 | 350 | 364 | 46 | 340 | 295 | 8-M20 | |
| 12-M20 | |||||||
| 250 | 450 | 434/425 | 60 | 395 | 350 | 12-M20 | |
| 438/430 | 66 | 405 | 355 | 12-M20 | |||
| 300 | 500 | 460/480 | 445 | 400 | 12-M20 | ||
| 465/485 | 460 | 410 | 12-M20 | ||||
| 350 | 500 | 592 | 505 | 460 | 16M24 | ||
| 400 | 631 | 631 | 565 | 515 | 16M24 | ||
| 500 | 800 | 740 | 670 | 620 | 20M24 | ||
五、可參考說明書內容。